ホーム各課のページ教育総務課教育施設整備係
最終更新日:2020年08月11日
教育総務課教育施設整備係

統合中学校(猪苗代中学校)の建設工事が始まります

 統合中学校(猪苗代中学校)は、現猪苗代中学校の校庭を敷地として、令和4年4月の開校に向け、今夏から工事が始まります


パース.jpg
<完成予想図>


1F平面図.jpg
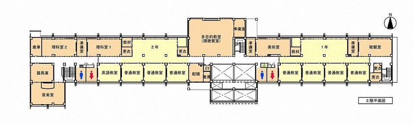
2F平面図.jpg
<校舎平面図>

校舎の概要


 構造・面積  鉄筋コンクリート造2階建、延べ床面積5,861m2
 普通教室   教室すべてを南側に配置し明るく視環境の良い学習環境とし、特別支援教室は保健室、職員室と隣接した1階に配置し、安心して学べる環境を確保します。        
 管理諸室   職員室、保健室等は校庭側に配置するとともに、死角の少ない生徒動線とし教職員の視認性を確保します。  
 特別教室   式典、集会等で使用できる多目的教室は、生徒が集まりやすい2階中央に配置します。
          図書室とパソコン室は生徒の利便性と調べ学習がしやすいように校舎の中心に集約して配置します。
 環境配慮   地中熱を利用した空調、高断熱サッシ、LED照明等を採用し省エネに努めるとともに、冷気が入りにくいよう建具を設置するなどし、環境に配慮します。        
 防災対応   地域の防災拠点として、停電時の電源を確保するために非常用発電機を設置するとともに、炊き出しがしや すいよう調理実習室を体育館に隣接させるなど
          災害に強い学校を目指します。        

 ※屋内運動場につきましては、現在実施設計中となっております。 

統合に向けての整備スケジュール


 令和2年度   校舎新築工事、屋内運動場実施設計、校章の決定、生徒交流活動、通学方法・部活動の検討
 令和3年度   校舎新築工事、校舎外構工事、校歌の決定、PTA・後援会新組織の設立
 令和4年度(4月開校)   屋内運動場新築工事、旧校舎解体工事
 令和5年度   旧屋内運動場解体工事、校庭整備工事




 令和2年8月から令和5年にかけて工事が行われます。現場周辺では工事車両等の通行でご迷惑をおかけしますが、ご理解とご協力をお願いいたします。



お問い合せ:教育総務課教育施設整備係 電話0242-62-5677
もどる