○猪苗代町準用河川に係る河川管理施設等の構造の技術的基準を定める条例施行規則
平成二十五年三月二十五日
規則第八号
(趣旨)
第一条 この規則は、猪苗代町準用河川に係る河川管理施設等の構造の技術的基準を定める条例(平成二十五年条例第十号。以下「条例」という。)の施行に関し必要な事項を定めるものとする。
一 第一種側帯 旧川の締切箇所、漏水箇所その他堤防の安定を図るため必要な箇所に設けるものとし、その幅は、三メートル以上とすること。
二 第二種側帯 非常用の土砂等を備蓄するため特に必要な箇所に設けるものとし、その幅は、五メートル以上で、かつ、堤防敷(側帯を除く。)の幅の二分の一以下(二十メートル以上となる場合は、二十メートル)とし、その長さは、おおむね長さ十メートルの堤防の体積(百立方メートル未満となる場合は、百立方メートル)の土砂等を備蓄するために必要な長さとすること。
三 第三種側帯 環境を保全するため特に必要な箇所に設けるものとし、その幅は、五メートル以上で、かつ、堤防敷(側帯を除く。)の幅の二分の一以下(二十メートル以上となる場合は、二十メートル)とすること。
(堤防に沿って設置する樹林帯の構造)
第三条 条例第十三条の堤防に沿って設置する樹林帯の構造は、堤内の土地にある樹林帯にあっては、成木に達したときの胸高直径が三十センチメートル以上の樹木が十平方メートル当たり一本以上あるものその他洪水時における破堤の防止等の効果がこれと同等以上のものとする。
(堤防の管理用通路)
第四条 条例第十四条に規定する管理用通路は、次に定めるところにより設けるものとする。ただし、管理用通路に代わるべき適当な通路がある場合、堤防の全部若しくは主要な部分がコンクリート、鋼矢板若しくはこれらに準ずるものによる構造のものである場合又は堤防の高さと堤内地盤高との差が〇・六メートル未満の区間である場合においては、この限りでない。
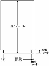
一 幅員は、三メートル以上で堤防の天端幅以下の適切な値とすること。
二 建築限界は、次の図に示すところによること。

(主要な公共施設に係る橋)
第五条 条例第二十二条第二項の規則で定める主要な公共施設に係る橋は、次に掲げるものに係る橋とする。
一 全国新幹線鉄道整備法(昭和四十五年法律第七十一号)第二条に規定する新幹線鉄道
二 道路法(昭和二十七年法律第百八十号)第三条第一号に規定する高速自動車国道
三 前号に規定する道路以外の道路で幅員三十メートル以上のもの
(近接橋の特則)
第六条 条例第二十二条第四項に規定する河道内に橋脚が設けられている橋その他の河川を横断して設けられている施設(以下この項において「既設の橋等」という。)に近接して設ける橋(以下この条において「近接橋」という。)の径間長は、条例第二十二条第一項から第三項までに規定するところによるほか、次の各号に掲げる場合に応じ、それぞれ当該各号に定めるところにより近接橋の橋脚を設けることとした場合における径間長の値とするものとする。ただし、既設の橋等の改築又は撤去が五年以内に行われることが予定されている場合は、この限りでない。
一 既設の橋等と近接橋との距離(洪水時の流心線に沿った見通し線(以下この項において「見通し線」という。)上における既設の橋等の橋脚等(以下この項において「既設の橋脚等」という。)と近接橋の橋脚との間の距離をいう。次号において同じ。)が条例第二十二条第一項の規定による基準径間長未満である場合においては、近接橋の橋脚を既設の橋脚等の見通し線上に設けること。
二 既設の橋等と近接橋との距離が、条例第二十二条第一項の規定による基準径間長以上であって、かつ、川幅(二百メートルを超えることとなる場合は、二百メートル)以内である場合においては、近接橋の橋脚を既設の橋脚等の見通し線上又は既設の橋等の径間の中央の見通し線上に設けること。
2 前項の規定によれば近接橋の径間長が七十メートル以上となる場合においては、同項の規定にかかわらず、径間長を条例第二十二条第一項の規定による基準径間長から十メートルを減じた値以上とすることができる。
3 第一項の規定によれば近接橋の流心部の径間長が七十メートル以上となる場合においては、同項の規定にかかわらず、径間長の平均値を条例第二十二条第一項の規定による基準径間長から十メートルを減じた値(三十メートル未満となる場合は、三十メートル)以上とすることができる。
(橋面)
第七条 条例第二十三条の規則で定める橋の部分は、地覆その他流水又は波浪が橋を通じて河川外に流出することを防止するための措置を講じた部分とする。
(管理用通路の保全のための橋の構造)
第八条 条例第二十五条の管理用通路の構造に支障を及ぼさない橋(取付部を含む。)の構造は、管理用通路(管理用通路を設けることが計画されている場合は、当該計画されている管理用通路)の構造を考慮して適切な構造の取付通路その他必要な施設を設けた構造とする。ただし、管理用通路に代わるべき適当な通路がある場合は、この限りでない。
(治水上の影響が著しく小さい橋)
第九条 条例第二十六条の規則で定める橋は、次に掲げるものとする。
一 高水敷に設ける橋で小規模なもの
二 低水路に設ける橋で可動式とする等の特別の措置を講じたもの
(小河川の特例)
第十条 条例第二十九条に規定する小河川に設ける河川管理施設等については、河川管理上の支障があると認められる場合を除き、次に定めるところによることができる。
一 堤防の天端幅は、計画高水位が堤内地盤高より高く、かつ、その差が〇・六メートル未満である区間においては、計画高水流量に応じ、次の表の下欄に掲げる値以上とすること。
項 | 計画高水流量(単位 一秒間につき立方メートル) | 天端幅(単位 メートル) |
一 | 五〇未満 | 二 |
二 | 五〇以上一〇〇未満 | 二・五 |
二 堤防の高さは、計画高水位が堤内地盤高より高く、かつ、その差が一・六メートル未満である区間においては、計画高水流量が一秒間につき五十立方メートル未満であり、かつ、堤防の天端幅が二・五メートル以上である場合は、計画高水位に〇・三メートルを加えた値以上とすること。
三 堤防に設ける管理用通路は、川幅が十メートル未満である区間においては、幅員は、二・五メートル以上とし、建築限界は、次の図に示すところによること。

四 橋については、条例第二十一条第二項中「二十メートル」とあるのは「十メートル」と、「二メートル」とあるのは「一メートル」と、「一メートル」とあるのは「〇・五メートル」と読み替えて同項の規定を適用すること。
附則
この規則は、平成二十五年四月一日から施行する。